PASSZÍVHÁZ

 

 

  

 

    Hazánkban a hagyományos tégla-falazó anyagok mellett mostanra jó néhány építési rendszer kínálja termékeit az építtetők számára. A szerkezetek tartalmazhatnak fát, acélt, betont, a hőszigetelő anyagok lehetnek kőzetgyapot, polisztirol, farost, cellulóz, szalma stb. Fontos leírni, hogy szinte mindegyik alkalmas passzívház építésére megfelelő tervezés és gondos kivitelezés mellett.

 

 

Mi az a passzívház?

 

    A passzívház olyan épület, melyben kellemes hőmérséklet uralkodik télen külön fűtési rendszer, nyáron pedig légkondicionáló berendezés nélkül, extrém alacsony energiaráfordítás mellett. Ilyen épületekben nincs szükség télen hagyományos olajkályhára, gázkazánra vagy hőszivattyúra, nyáron pedig légkondicionáló berendezésre a kellemes hőérzet biztosításához.

 

    A fűtési hőszükséglet 15 kWh/(m²év)-re, a primerenergia-felhasználás, beleértve a használati melegvíz előállítását és a háztartási áramot is, pedig 120 kWh/(m²év)-re korlátozódik. Különösen a passzívház-komponensek felhasználása garantálja a magas komfortszintet és az épület állagának megóvását.

 

    Ezen alacsony értékek annak köszönhetőek, hogy a passzívház különösen jó hőszigeteléssel rendelkezik, mind a falak, az aljzat és a tető, mind pedig a nyílászárok tekintetében. Ezáltal a passzívház hővesztesége csak töredékét teszi ki egy hagyományos házénak. A hőveszteségek minimalizálása érdekében a kiváló hőszigetelés alkalmazása mellett különös figyelem esik a hőhídmentes és légtömör szerkezet kialakítására, valamint a ház energiaháztartásának figyelembevételére már az építészeti tervezés során.

 

    A szellőztetés egy passzívházban mindig kontrolált módon, hővisszanyerővel ellátott légkomfort szellőztető-berendezéssel történik. Így egyrészről folyamatosan biztosított a kiváló levegőminőség a lakáson belül, másfelől a szellőztetési hőveszteség is a töredékére csökkenthető.

 

    A passzívházban fellépő összes hőveszteség olyan minimális, hogy annak pótlásához nincs szükség külön fűtési rendszer kiépítésére, a fűtés jelentős részét a házban jelenlévő passzív energiaforrások biztosítják. Legfőbb passzív energiaforrás az ablakokon keresztül beérkező napfény, valamint a gépek és a bentlakók által leadott hő. Ezek a passzív energiaforrások – kombinálva a házból eltávozó, elhasznált levegőből visszanyert hőenergiával – képesek lefedni egy passzívház szinte teljes fűtési energiaszükségletét. Plusz hőt az egyébként is jelenlévő szellőztető rendszeren keresztül lehet bevinni.

 

    Egy passzívház fűtési energiaszükséglete 80-90 %-kal kevesebb, mint egy hagyományos házé és 60-75 %-kal kevesebb, mint egy alacsony energiaszintű házé. Egyetlen passzívház évente tonnás nagyságrenddel kevesebb széndioxid-kibocsátást okoz, mint egy hagyományos ház. 2008 végéig mintegy 16.000 passzívház épült világszerte, egyre több régió támogatja aktívan a passzívház-szabvány alkalmazását.

 

Passzívház-követelmények

 

    A passzívház követelményeknek külön-külön megfelelő komponensek puszta felhasználása magában még nem elegendő ahhoz, hogy egy épület passzívházzá váljon: a komponensek egymásra hatása integrált tervezést tesz szükségszerűvé, csak ezáltal érhető el a passzívház-szabvány. Ez abban az esetben következik be, ha a PHPP-vel (Passzívház Tervezőcsomag) készített számítás igazolja, hogy a passzívház-követelmények teljesültek, azaz

 

a fajlagos fűtési hőszükséglet <= 15 kWh/(m²év),

 

a nyomásteszt légcsereszáma n50 <= 0,6 h-1

 

és a fajlagos primerenergia-szükséglet <= 120 kWh/(m²év).

 

Ilyen esetben általában az épület hőterhelése 10 W/m² értékű lesz és a szellőztetésen keresztüli kifűthetőség biztosítható.

 

A szükséges követelmények teljesítéséhez a következő tényezőket kell betartani a tervezés során:


    A ház külső burkának minden építőelemét (ablakokat kivéve) 0,15 W/m2K alatti U-értékre kell szigetelni.
Az épület legyen a lehetőségek szerint kompakt. Kerülendő a kitüremkedő épületrészlet, a beszögeléses alaprajz, a földszintes épület, a sarokablak, stb.


    Az ablakok és ajtók U-értéke (a 3-rétegű üvegezés az ablakkerettel együtt) nem lépheti túl a 0,8-as értéket.
    Az épület légtömörsége szempontjából 50 Pascal nyomáskülönbségnél (Blower Door-teszt) a légcsere óránként nem haladhatja meg az összlégtérfogat 0,6-szorosát.


    A kifújt elhasznált levegő hőjét megfelelő műszaki berendezéssel, mint például hőszivattyúval vagy hőcserélővel el kell vonni és át kell adni a befújt friss levegőnek. A hővisszanyerés hatásfoka nem lehet alacsonyabb, mint 75 %.

 

Lap tetejére    

 

Minősítések

 

    A passzívház komponensek és a passzívházak mértékadó kritériumait a Passivhaus Institut (PHI), és intézetvezetője, Dr. Wolfgang Feist határozza meg.

    Komponensek, mint az üvegezés, ablakok, ajtók, légkomfort szellőztető berendezések és csomópontok, melyeket a PHI "Passzívházhoz alkalmas komponens" (németül "Passivhaus geeignete Komponente") minősítéssel illet, teljesítik az adott komponensre vonatkozó kívánalmakat. A minősített passzívház komponensek rendelkeznek azon technikai paraméterekkel, melyek az épületek energiamérlegének a kiszámításához szükségesek.

    Épületek, melyek rendelkeznek a PHI vagy az általa erre feljogosított intézmény által kiállított "Minőségvizsgált passzívház" (németül "Qualitätsgeprüftes Passivhaus") minősítéssel, teljesítik a fent említett kritériumokat. Gondos kivitelezést feltételezve várható, hogy a kiszámolt energiaszükségletek rendeltetésszerű lakáshasználat mellett a valóságban is elérésre kerülnek.

 

 

A passzívház előnyei

 

 

A meleg bent marad a házban

    Egy nagyon jól szigetelt épületburok, 25 és 40 cm közötti szigetelésvastagsággal, valamint háromrétegű, hővédő üvegezéssel ellátott ablakok és szigetelt ablaktokok következtében a meleg bent marad a házban. A friss levegőről egy hővisszanyerővel ellátott légkomfort szellőztetőberendezés gondoskodik. A házból kifújt levegő érezhető melegének több mint 75 %-át a hőcserélő átadja a befújt levegőnek. Így például 0 °C-os külső hőmérséklet mellett a hideg friss levegőt a lakásból elszívott 20 °C-os meleg levegő legalább 16 °C-osra előmelegíti. Így nemcsak az allergiában vagy asztmában szenvedők értékelik nagyra a passzívház pollenmentes és porszegény levegőjét.

 

 

A nap ingyen fűt

 

    Hőnyereségre a passzívház az ablakokon keresztül beérkező napsugárzásból és a bent tartózkodó személyek, illetve háztartási készülékek hőleadásából tesz szert. Nyáron az épület árnyékolása (pl. balkon vagy redőnyök által) akadályozza meg a helyiségek túlmelegedését. A hideg téli hónapokban a légkomfort szellőztetésen keresztül a befújt levegő további felmelegítésre kerül, így egy külön fűtési rendszer feleslegessé válik.


    A darmstadt-kranichsteini első német passzívházban történt többéves mérések bizonyítják, hogy még a múlt század egyik leghidegebb telén, 1996-97-ben, amikor a napi középhőmérséklet -14°C volt, a négylakásos társasházban olyan csekély fűtési teljesítményre volt csak szükség, hogy egy 20 m²-es szobát két darab 75-wattos izzó ki tudott fűteni. Ez idő alatt a társasházban a levegő hőmérséklete egész nap 20 °C fölött maradt.

 

 

A passzívház magas komfortszintje meggyőzi a szkeptikusokat

 

    A passzívház ugyan energiát és pénzt takarít meg, egy dolognál azonban nem spórol: a komfortnál!
    A passzívházban élők értékelik házaik magas komfortszintjét. Az összes fal és az aljzat is a jó hőszigetelés következtében egyöntetűen meleg, a kültérrel érintkező épületrészeknél is. Mindez magas komfortérzetet okoz. Rossz levegő éjjel a hálószobában ha a hideg vagy a zaj miatt az ablakok nem maradhatnak buktatva? A légkomfort szellőztetésnek hála, nem ismert egy passzívházban.
    A penészképződés is ki van zárva, a nagyfokú hőszigetelés és folyamatos légcsere miatt az épületszerkezet nedvesedése, a kondenzvíz kiválása nem jön létre, még az üvegfelületek szélénél sem.

 

 

Már 32.000 passzívház készült világszerte

 

    Az a különös a passzívházban, hogy nem kötődik egy speciális építési módhoz sem. Sokkal inkább egy minőségi szabványról van szó. Készültek passzívházak hagyományos építési móddal, könnyűszerkezettel vagy ezek kombinációjával. Egyre több építész tud passzívházat tervezni és építeni. Sok készházgyártó is felvette a passzívházat a palettájára. Egyre növekvő számban hódít teret a passzívház a nem lakás célú épületeknél is. Számos iskola, óvoda, irodaépület, gyártócsarnok és hotel készült már el a passzívház szabványnak megfelelően.

Forrás: Passivhaus Institut, Darmstadt

 

 

Lap tetejére    

 

 

 

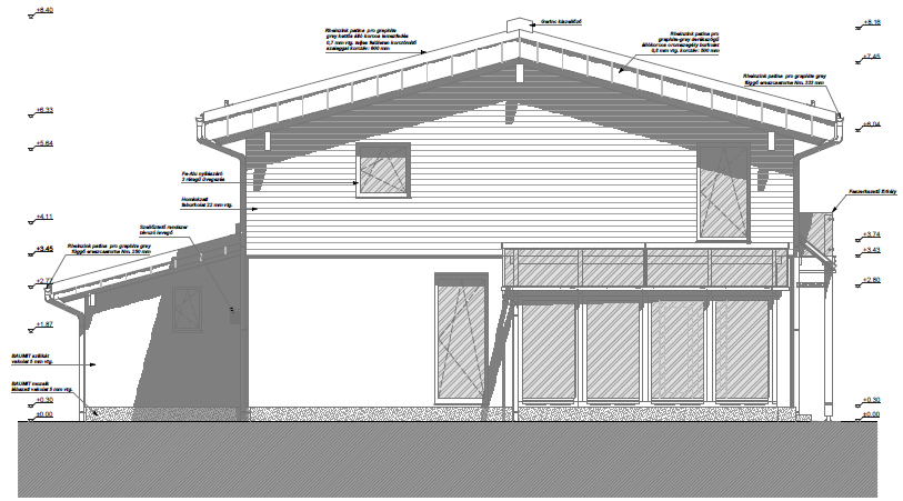
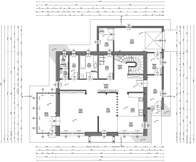
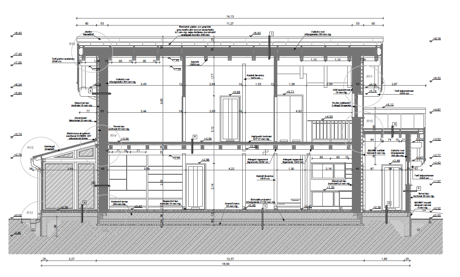
Példaként álljon itt egy nemrégiben tervezett könnyűszerkezetes családi ház, mely tervezésében és energetikai tulajdonságaiban eléri a passzívház-standard értékeit.

 

    A faszerkezetű ház cellulóz és farost alapú hőszigetelő anyagokkal éri el a kívánt hőszigetelési értékeket. A kétszintes épület alápincézetlen, közel négyzet alaprajzú, 138,36 m2 területű.
    A lakóház észak-keleti oldalához egy melléképület kapcsolódik, melyben előtér, közlekedő, kamra és gépkocsi tároló kap helyet összesen 47,65 m2 alapterületen. A főépület nyugati oldalán télikert csatlakozik a házhoz, melynek külső bejárata mellett a nappaliból is elérhető.

 

 

Beépített területek:


     Földszint:                    138,36 m2
     Emelet:                       138,36 m2
     Melléképület:              47,65 m2
     Télikert:                      14,23 m2

 

 

 

 

 

 

 

 

 

 

Lap tetejére